Italiano
97.000 €

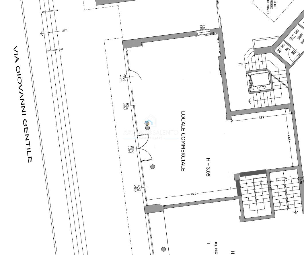
Locale in Vendita a Tricase

Negozio in vendita • Tricase
Proponiamo in vendita questo locale commerciale, situato in una zona di elevata visibilità che garantisce un flusso continuo di clienti. Con una superficie di 120 mq, questo spazio di recente costruzione è perfetto per chi desidera avviare un'attività in un contesto dinamico e strategico. Il locale presenta uno stato rustico avanzato, offrendo la libertà di personalizzazione secondo le proprie esigenze. Le ampie vetrine fronte strada non solo assicurano una luminosità eccezionale, ma permettono anche di esporre al meglio i propri prodotti. Inoltre, la posizione strategica con un costante transito veicolare rende questo locale ideale per varie attività commerciali, mentre il comodo parcheggio esterno antistante offre un ulteriore vantaggio per la clientela.
Caratteristiche principali
Codice
8
Città
Tricase
Categoria
Negozio
Prezzo
97.000 €
Locali
1
Mq
120
Classe energetica
Non classificabile
Stato Immobile
Nuovo
Consulenti per informazioni
Antonio Marra
Antonio Marra
+39 388 1813430
Condividi su
Cookie preference